

微信在线客服 邮箱:china@messwelk.com
手机:15275707088
电话:152-7570-7088
地址:山东省德州市德城区抬头寺乡
发布时间:2022-05-19 16:08:34 人气:
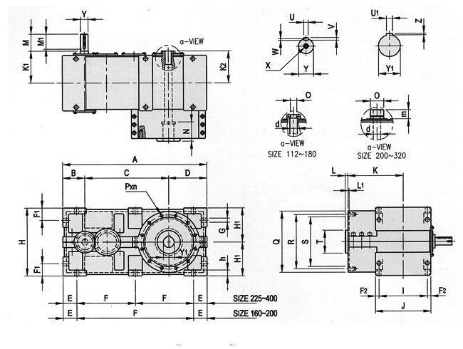
TEX-3P齿轮减速机外形及安装尺寸

|
型号 |
A |
B |
C |
D |
E |
F |
F1 |
F2 |
G |
H |
H1 |
|
160 |
665 |
100 |
385 |
180 |
63 |
539 |
50 |
15.5 |
20 |
320 |
160 |
|
180 |
744 |
112 |
432 |
200 |
70 |
604 |
60 |
18 |
22 |
360 |
180 |
|
200 |
835 |
125 |
485 |
225 |
80 |
675 |
70 |
20 |
24 |
400 |
200 |
|
225 |
935 |
140 |
545 |
250 |
90 |
377.5 |
80 |
22.5 |
27 |
450 |
225 |
|
250 |
1050 |
160 |
610 |
280 |
100 |
425 |
90 |
26 |
30 |
500 |
250 |
|
280 |
1180 |
180 |
685 |
315 |
112 |
478 |
100 |
30 |
33 |
560 |
280 |
|
320 |
1325 |
200 |
770 |
355 |
125 |
537.5 |
112 |
35 |
36 |
630 |
315 |
|
360 |
1490 |
225 |
865 |
400 |
140 |
605 |
125 |
40 |
39 |
710 |
355 |
|
400 |
1670 |
250 |
970 |
450 |
160 |
675 |
140 |
45 |
42 |
800 |
400 |
|
型号 |
h |
l |
J |
K |
K1 |
K2 |
L |
L1 |
M
R<100 |
M
R≥100 |
M1
R<100 |
M1
R≥100 |
|
160 |
21 |
225 |
256 |
250 |
160 |
160 |
17 |
6 |
70 |
63 |
60 |
50 |
|
180 |
26 |
250 |
286 |
275 |
175 |
175 |
17 |
6 |
80 |
70 |
70 |
60 |
|
200 |
31 |
280 |
320 |
320 |
190 |
190 |
18 |
6 |
90 |
80 |
80 |
70 |
|
225 |
36 |
315 |
360 |
355 |
210 |
210 |
18 |
6 |
100 |
90 |
90 |
80 |
|
250 |
42 |
355 |
407 |
405 |
235 |
235 |
20 |
8 |
112 |
100 |
100 |
90 |
|
280 |
48 |
400 |
460 |
445 |
260 |
260 |
20 |
8 |
125 |
112 |
110 |
100 |
|
320 |
50 |
450 |
520 |
490 |
290 |
290 |
20 |
8 |
140 |
125 |
130 |
110 |
|
360 |
55 |
500 |
580 |
560 |
322 |
322 |
24 |
10 |
160 |
140 |
150 |
130 |
|
400 |
60 |
560 |
650 |
640 |
370 |
370 |
24 |
10 |
180 |
160 |
170 |
150 |
|
型号 |
m |
N |
n |
d |
O |
P |
Q |
R |
SH7 |
T |
Y
R<100 |
UH9
R<100 |
V
R<100 |
W
R<100 |
|
160 |
|
80 |
8 |
26 |
M18 |
M16 |
300 |
260 |
230 |
110 |
32k6 |
10 |
8 |
5 |
|
180 |
|
110 |
8 |
25 |
M20 |
M20 |
350 |
300 |
260 |
130 |
35k6 |
10 |
8 |
5 |
|
200 |
50 |
110 |
8 |
42 |
M85 |
M20 |
380 |
330 |
290 |
140 |
40k6 |
12 |
8 |
5 |
|
225 |
50 |
140 |
12 |
55 |
M85 |
M20 |
400 |
350 |
310 |
160 |
45k6 |
14 |
9 |
5.5 |
|
250 |
50 |
140 |
12 |
55 |
M85 |
M24 |
450 |
400 |
365 |
170 |
50m6 |
14 |
9 |
5.5 |
|
280 |
50 |
140 |
12 |
60 |
M90 |
M24 |
500 |
450 |
400 |
180 |
55m6 |
16 |
10 |
6 |
|
320 |
50 |
140 |
12 |
60 |
M90 |
M24 |
600 |
500 |
450 |
190 |
60m6 |
18 |
11 |
7 |
|
360 |
50 |
160 |
12 |
80 |
M120 |
M30 |
680 |
600 |
520 |
200 |
70m6 |
20 |
12 |
7.5 |
|
400 |
50 |
180 |
12 |
80 |
M120 |
M33 |
750 |
680 |
600 |
220 |
80m6 |
22 |
14 |
9 |
|
型号 |
Y
R≥100 |
UH9
R≥100 |
V
R≥100 |
W
R≥100 |
X |
Y1H7 |
U1H9 |
Z |
重量
KG |
油量
L |
|
160 |
28k6 |
8 |
7 |
4 |
M8 |
42H7 |
12 |
3.3 |
260 |
10 |
|
180 |
32k6 |
10 |
8 |
5 |
M8 |
48H7 |
14 |
3.8 |
338 |
16 |
|
200 |
35k6 |
10 |
8 |
5 |
M10 |
60H7 |
18 |
4.4 |
490 |
22 |
|
225 |
40k6 |
12 |
8 |
5 |
M10 |
70H7 |
20 |
4.9 |
656 |
28 |
|
250 |
45k6 |
14 |
9 |
5.5 |
M10 |
80H7 |
22 |
5.4 |
900 |
36 |
|
280 |
50m6 |
14 |
9 |
5.5 |
M12 |
90H7 |
25 |
5.4 |
1300 |
47 |
|
320 |
55m6 |
16 |
10 |
6 |
M12 |
100H7 |
28 |
6.4 |
1890 |
60 |
|
360 |
60m6 |
18 |
11 |
7 |
M12 |
110H7 |
28 |
6.4 |
2820 |
85 |
|
400 |
70m6 |
20 |
12 |
7.5 |
M16 |
125H7 |
32 |
7.4 |
4020 |
115 |
相关推荐