

微信在线客服 邮箱:china@messwelk.com
手机:15275707088
电话:152-7570-7088
地址:山东省德州市德城区抬头寺乡
发布时间:2022-05-17 14:49:32 人气:
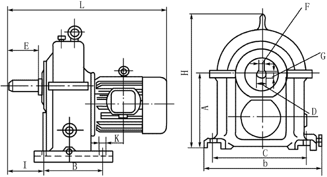
YTC齿轮减速三相异步电动机外形及安装尺寸

|
型号 |
安装尺寸 |
外形尺寸 | ||||||||||
|
A |
B |
C |
D |
E |
F |
G |
H |
K |
b |
h |
L1 | |
|
YTC501 |
310 |
250 |
22 |
35 |
80 |
10 |
29.8 |
250 |
19 |
376 |
460 |
565 |
|
YTC502 |
310 |
250 |
22 |
35 |
80 |
10 |
29.8 |
250 |
19 |
376 |
460 |
590 |
|
YTC561 |
370 |
300 |
14 |
50 |
110 |
14 |
44.2 |
280 |
19 |
446 |
512 |
678 |
|
YTC562 |
370 |
300 |
14 |
50 |
110 |
14 |
44.2 |
280 |
19 |
446 |
512 |
720 |
|
YTC671 |
420 |
360 |
9 |
60 |
140 |
18 |
52.9 |
335 |
24 |
520 |
605 |
780 |
|
YTC672 |
420 |
360 |
9 |
60 |
140 |
18 |
52.9 |
335 |
24 |
520 |
605 |
830 |
|
YTC751 |
500 |
360 |
15 |
60 |
140 |
18 |
52.9 |
375 |
24 |
600 |
675 |
870 |
|
YTC752 |
500 |
360 |
15 |
60 |
140 |
18 |
52.9 |
375 |
24 |
600 |
675 |
870 |
|
YTC902 |
550 |
360 |
23 |
70 |
140 |
20 |
62.2 |
450 |
24 |
660 |
800 |
915 |
|
YTC903 |
550 |
360 |
23 |
70 |
140 |
20 |
62.2 |
450 |
24 |
660 |
800 |
960 |
相关推荐