

微信在线客服 邮箱:china@messwelk.com
手机:15275707088
电话:152-7570-7088
地址:山东省德州市德城区抬头寺乡
发布时间:2022-05-17 14:49:01 人气:

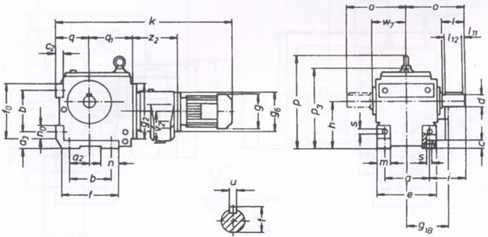
|
型号 |
a
a2
a3 |
b
c
c2 |
e
f
f0 |
g |
g1B |
g2
g6 |
h |
i |
k |
m
n |
n0
0 |
p
p3 |
q
q1
s |
v2
w7
z2 |
d
l |
l11
l12 |
t
u | |
|
SWD140S90 |
Y63 |
130
60
40 |
130
20
18 |
160
195
170 |
130 |
100 |
160
120 |
140
-0.5
|
95 |
670 |
38
45 |
40
160 |
277
231 |
106
135
14 |
91
84
167 |
35
70 |
7
56 |
38
10 |
|
Y71 |
175 |
150 |
688 | |||||||||||||||
|
Y80 |
693 | |||||||||||||||||
|
Y90 |
195 |
160 |
730 | |||||||||||||||
|
SWD180S90 |
Y63 |
150
75
70 |
135
25
25
|
185
216
180 |
130 |
100 |
200
120 |
180
-0.5
|
120 |
685 |
45
67 |
45
195 |
336
291 |
125
162
18 |
91
99
136 |
45
90 |
5
80 |
48.5
14 |
|
Y71 |
175 |
150 |
703 | |||||||||||||||
|
Y80 |
708 | |||||||||||||||||
|
Y90 |
195 |
160 |
745 | |||||||||||||||
|
SWD225S115 |
Y63 |
200
92
82 |
180
34
30 |
250
260
235 |
130 |
100 |
250
160 |
225
-0.5
|
155 |
776 |
55
80 |
55
255 |
434
372 |
150
195
22 |
118
130
169 |
60
120 |
10
100 |
64
18 |
|
Y71 |
175 |
150 |
794 | |||||||||||||||
|
Y80 |
799 | |||||||||||||||||
|
Y90 |
212 |
160 |
836 | |||||||||||||||
|
Y100 |
180 |
865 | ||||||||||||||||
|
SWD280S115 |
Y63 |
250
115
90 |
235
40
35 |
300
320
300 |
130 |
100 |
300
160 |
280
-1
|
170 |
851 |
65
90 |
65
295 |
529
458 |
180
240
26 |
118
150
169 |
70
1401 |
15
110 |
74.5
20 |
|
Y71 |
175 |
150 |
869 | |||||||||||||||
|
Y80 |
874 | |||||||||||||||||
|
Y90 |
212 |
160 |
911 | |||||||||||||||
|
Y100 |
180 |
940 | ||||||||||||||||
相关推荐