

微信在线客服 邮箱:china@messwelk.com
手机:15275707088
电话:152-7570-7088
地址:山东省德州市德城区抬头寺乡
发布时间:2022-05-17 14:31:49 人气:

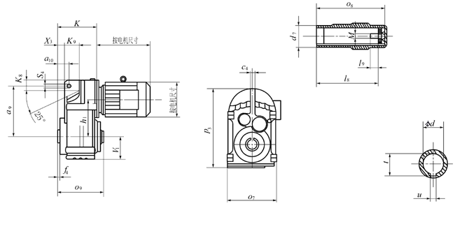
|
型号 |
a9 |
a10 |
c4 |
f4 |
h1 |
k |
k8 |
k9 |
o7 |
o8 |
o9 |
p3 |
s4 |
v1 |
x3 |
d |
d7 |
l8 |
l9 |
t |
u |
M |
|
JTFA37 |
158 |
31.5 |
12 |
0.5 |
112 |
110 |
30 |
46 |
165 |
120 |
123 |
252 |
14 |
76 |
15 |
30H7 |
45 |
105 |
17 |
33.3 |
8 |
M10 |
|
JTFA47 |
170 |
32 |
12 |
1 |
128.1 |
133 |
22 |
64 |
180 |
150 |
153 |
269 |
14 |
77 |
12 |
35H7 |
50 |
132 |
22 |
38.3 |
10 |
M10 |
|
JTFA57 |
198 |
40.5 |
14 |
1 |
136 |
150 |
31 |
60 |
200 |
166 |
170 |
317 |
14 |
93 |
19.5 |
40H7 |
55 |
142 |
29 |
43.3 |
12 |
M16 |
|
JTFA67 |
218 |
41 |
16 |
1 |
159.5 |
161 |
40 |
65 |
212 |
180 |
184 |
343 |
14 |
97 |
21 |
40H7 |
55 |
156 |
29 |
43.3 |
12 |
M16 |
|
JTFA77 |
278 |
50 |
20 |
1 |
200 |
193 |
49 |
69 |
270 |
210 |
213 |
426 |
22 |
121 |
28 |
50H7 |
70 |
183 |
32 |
53.8 |
14 |
M16 |
|
JTFA87 |
346 |
62 |
26 |
1 |
246.7 |
224 |
57 |
79 |
330 |
240 |
243 |
531 |
22 |
152 |
32 |
60H7 |
85 |
210 |
36 |
64.4 |
18 |
M20 |
|
JTFA97 |
395 |
70 |
30 |
1 |
285 |
274 |
88 |
104 |
400 |
300 |
303 |
623 |
26 |
178 |
34 |
70H7 |
95 |
270 |
34 |
74.9 |
20 |
M20 |
|
JTFA107 |
485 |
88 |
36 |
2.5 |
332.4 |
312 |
108 |
100 |
450 |
350 |
353 |
717 |
26 |
200 |
57 |
90H7 |
118 |
313 |
40 |
95.4 |
25 |
M24 |
|
JTFA127 |
550 |
110 |
40 |
2.5 |
382.6 |
373 |
138 |
125 |
530 |
410 |
413 |
856 |
33 |
236 |
66 |
100H7 |
135 |
373 |
38 |
106.4 |
28 |
M24 |
|
JTFA157 |
660 |
150 |
45 |
7 |
447 |
455 |
170 |
140 |
660 |
500 |
503 |
1021 |
33 |
286 |
98 |
120H7 |
155 |
460 |
36 |
127.4 |
32 |
M24 |
相关推荐